In der heutigen Zeit suchen viele Bauherren nach vielfältigen Grundrissvarianten für Einfamilienhäuser, die sowohl einen Keller als auch eine Garage umfassen. Diese Grundrisse müssen unterschiedliche Bedürfnisse und Grundstücksbedingungen berücksichtigen, um den individuellen Anforderungen der Familien gerecht zu werden. Ein Beispiel ist ein zweigeschossiges Einfamilienhaus, das auf einem ebenerdigen Grundstück errichtet wird und eine moderne, offene Architektur aufweist. Hierbei bietet der Keller zusätzliche Nutzfläche für verschiedene Zwecke, während die Garage eine praktische Verbindung zum Wohnbereich schafft.
Ein weiteres beliebtes Modell ist der Bungalow 100, der sich durch seine Barrierefreiheit auszeichnet und für Familien mit Kindern oder älteren Personen ideal ist. In diesem Artikel werden verschiedene Grundrisslösungen vorgestellt, die nicht nur funktional sind, sondern auch moderne Designaspekte und Energieeffizienz berücksichtigen. Von individuellen Planungen bis hin zu standardisierten Lösungen gibt es zahlreiche Optionen, die den Bedürfnissen der Bauherren gerecht werden.
Kernpunkte:
- Vielfältige Grundrissvarianten für Einfamilienhäuser mit Keller und Garage.
- Beispiele wie das zweigeschossige Einfamilienhaus und der Bungalow 100.
- Flexible Raumaufteilungen, die sich an die Bedürfnisse von Familien anpassen.
- Moderne Architektur mit offenen Konzepten zur Maximierung von Raum und Licht.
- Energieeffizienzstandards, die bei der Planung berücksichtigt werden.
Vielfältige Grundrissoptionen für Einfamilienhäuser mit Keller und Garage
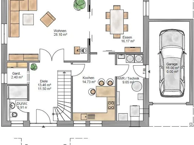
Es gibt eine Vielzahl von Grundrissvarianten für Einfamilienhäuser mit Keller und Garage, die auf unterschiedliche Bedürfnisse und Grundstücksbedingungen abgestimmt sind. Ein Beispiel ist ein zweigeschossiges Einfamilienhaus, das auf einem ebenerdigen Grundstück von etwa 860 m² errichtet wird. Dieses Haus zeichnet sich durch eine Doppelgarage mit Werkraum und eine moderne, offene Architektur aus, die einen Balkon im Obergeschoss umfasst. Der großzügige Keller bietet zusätzliche Nutzfläche, die vielseitig genutzt werden kann, sei es als Lagerraum, Technikraum oder Gästezimmer.
Ein weiteres Beispiel ist der Bungalow 100, der für 5 bis 6 Personen geeignet ist und auf breiten oder leicht geneigten Grundstücken realisiert werden kann. Dieser Bungalow ist eingeschossig und somit barrierefrei, was ihn ideal für Familien mit Kleinkindern oder älteren Menschen macht. Das Erdgeschoss umfasst eine geräumige Garage, die direkt mit dem Flur verbunden ist, sowie einen großzügigen Keller mit einer Nutzfläche von 124,4 m², der als Aufenthaltsraum oder Heimwerkstatt genutzt werden kann. Die Wohnfläche von 95 m² verteilt sich auf fünf Räume, darunter ein Wohnzimmer mit Kamin und überdachter Terrasse.
| Hausstil | Wohngröße (m²) | Kellerfläche (m²) | Garage |
|---|---|---|---|
| Zweigeschossiges Einfamilienhaus | ca. 150 | variabel | Doppelgarage |
| Bungalow 100 | 95 | 124,4 | Einzelgarage |
Praktische Grundrisse für Familien mit unterschiedlichen Bedürfnissen
Bei der Planung von Einfamilienhäusern ist es wichtig, praktische Grundrisse zu berücksichtigen, die den Bedürfnissen von Familien gerecht werden. Ein familienfreundlicher Grundriss sollte ausreichend Platz für Kinder, ältere Familienmitglieder und Haustiere bieten. Ein Beispiel hierfür ist ein Grundriss, der ein offenes Wohnkonzept mit angrenzendem Spielbereich für Kinder kombiniert. Außerdem sollte der Zugang zu den Schlafzimmern und Badezimmern so gestaltet sein, dass er für alle Altersgruppen leicht zugänglich ist.
- Offene Küchen, die in den Wohnbereich integriert sind, fördern die Kommunikation und Interaktion.
- Ein Spielzimmer oder ein separater Bereich für Kinder sorgt für Sicherheit und Ordnung im Wohnraum.
- Barrierefreie Zugänge zu allen Wohnbereichen sind besonders wichtig für ältere Menschen und Menschen mit Behinderungen.
Innovative Designideen für Einfamilienhäuser mit Keller und Garage
Moderne Designkonzepte für Einfamilienhäuser mit Keller und Garage setzen auf Ästhetik und Funktionalität. Ein offenes Konzept ist besonders beliebt, da es den Raum größer und einladender wirken lässt. Diese Designs ermöglichen es, verschiedene Wohnbereiche harmonisch miteinander zu verbinden, was eine flexible Nutzung der Räume fördert. Zudem können multifunktionale Möbel eingesetzt werden, um den Platz optimal auszunutzen. Ein Beispiel hierfür sind ausziehbare Esstische oder Schlafsofas, die sich leicht an unterschiedliche Bedürfnisse anpassen lassen.
Ein weiterer wichtiger Aspekt ist die Integration von natürlichem Licht in das Wohnkonzept. Große Fensterfronten und Lichtkuppeln im Kellerbereich tragen dazu bei, den Raum freundlich und hell zu gestalten. Dies ist besonders vorteilhaft für Keller, die oft als dunkle, wenig einladende Räume wahrgenommen werden. Durch strategisch platzierte Fenster kann der Keller nicht nur als Lagerraum, sondern auch als gemütlicher Aufenthaltsraum oder Büro genutzt werden. Solche innovativen Ansätze sorgen dafür, dass das Zuhause nicht nur funktional, sondern auch ansprechend und einladend ist.
Offene Wohnkonzepte für mehr Raum und Licht im Zuhause
Offene Wohnkonzepte bieten zahlreiche Vorteile, insbesondere wenn es darum geht, Raum und Licht zu maximieren. Diese Designs schaffen eine fließende Verbindung zwischen Küche, Essbereich und Wohnzimmer, was die Interaktion innerhalb der Familie fördert. Ein Beispiel für ein solches Konzept ist eine Kombination aus einer modernen Küche mit einer großen Kochinsel, die gleichzeitig als Essplatz dient. Zudem können große Fenster oder Schiebetüren zur Terrasse hin den Raum mit Tageslicht durchfluten und einen nahtlosen Übergang zur Außenfläche schaffen.
- Große Fensterfronten, die den Raum hell und freundlich gestalten.
- Kücheninseln, die als multifunktionale Bereiche dienen.
- Schiebetüren, die den Innenraum mit dem Außenbereich verbinden.
Flexibilität in der Raumgestaltung für Einfamilienhäuser
Die Flexibilität in der Raumgestaltung ist ein entscheidender Faktor für moderne Einfamilienhäuser. Familienbedürfnisse ändern sich im Laufe der Zeit, und ein flexibles Raumkonzept ermöglicht es, Wohnbereiche einfach anzupassen. Zum Beispiel kann ein Arbeitszimmer in ein Kinderzimmer umgewandelt werden, wenn die Kinder älter werden oder umgekehrt. Solche Anpassungen sind nicht nur praktisch, sondern tragen auch zur langfristigen Zufriedenheit der Bewohner bei. Durch flexible Raumaufteilungen können auch mehrere Generationen unter einem Dach leben, ohne dass es zu Platzproblemen kommt.
Ein weiterer Vorteil flexibler Raumkonzepte ist die Möglichkeit, Räume multifunktional zu nutzen. Ein Wohnzimmer kann beispielsweise auch als Spielbereich oder Home-Office dienen. Durch den Einsatz von modularen Möbeln und beweglichen Wänden können die Bewohner ihren Raum je nach Bedarf umgestalten. So bleibt das Zuhause nicht nur funktional, sondern auch dynamisch und anpassungsfähig an Lebensstiländerungen.
| Raumkonfiguration | Potenzielle Nutzung |
|---|---|
| Offenes Wohnzimmer | Wohnbereich, Spielzimmer, Arbeitsbereich |
| Schlafzimmer mit abtrennbarem Bereich | Elternschlafzimmer, Kinderzimmer, Gästezimmer |
| Kellerraum | Heimwerkstatt, Fitnessraum, Lagerraum |
Anpassbare Grundrisse für wachsende Familien und Lebensstile
Anpassbare Grundrisse sind besonders wichtig für wachsende Familien oder sich verändernde Lebensstile. Ein Beispiel hierfür ist ein Grundriss, der zusätzliche Zimmer oder flexible Wände bietet, um den Bedürfnissen der Bewohner gerecht zu werden. Häuser, die mit beweglichen Wänden ausgestattet sind, ermöglichen es den Bewohnern, den Grundriss je nach Bedarf zu verändern. So kann ein ursprünglich als Büro genutzter Raum leicht in ein Kinderzimmer umgewandelt werden, wenn die Familie wächst.
- Bewegliche Wände, die eine Anpassung der Raumaufteilung ermöglichen.
- Multifunktionale Räume, die je nach Bedarf umgestaltet werden können.
- Zusätzliche Lagerräume, die bei Bedarf in Wohnräume umgewandelt werden können.

Energieeffizienz und moderne Architektur im Bau von Einfamilienhäusern
Die Energieeffizienz spielt eine zentrale Rolle beim Bau von Einfamilienhäusern, insbesondere wenn es um grundrisse einfamilienhaus mit keller und garage geht. Moderne Architektur verfolgt das Ziel, Ressourcen zu schonen und den Energieverbrauch zu minimieren. Dies wird durch den Einsatz von hochwertigen Dämmmaterialien und energieeffizienten Fenstern erreicht, die den Wärmeverlust reduzieren. Außerdem sind viele neue Bauprojekte auf die Einhaltung von strengen Energieeffizienzstandards ausgelegt, wie etwa dem KfW-Effizienzhaus 40, das besonders umweltfreundlich ist und niedrige Betriebskosten verspricht.
Innovative Technologien, wie die Nutzung von Solarenergie und moderne Heizsysteme, tragen ebenfalls zur Energieeffizienz bei. Beispielsweise können Photovoltaikanlagen auf dem Dach installiert werden, um Strom zu erzeugen und so die Energiekosten zu senken. Auch die Verwendung von nachhaltigen Materialien, wie Holz oder recycelten Baustoffen, spielt eine wichtige Rolle in der modernen Architektur. Diese Materialien sind nicht nur umweltfreundlich, sondern bieten auch ästhetische Vorteile und tragen zur Schaffung eines gesunden Wohnklimas bei.
| Energieeffizienz-Kategorie | Materialien |
|---|---|
| KfW-Effizienzhaus 40 | Holz, Mineralwolle, Dreifachverglasung |
| KfW-Effizienzhaus 55 | Beton, Styropor-Dämmung, Zweifachverglasung |
| Standardbau | Konventionelle Ziegel, einfache Verglasung |
Nachhaltige Materialien und Bauweisen für ein grünes Zuhause
Die Verwendung von nachhaltigen Materialien ist entscheidend für den Bau umweltfreundlicher Einfamilienhäuser. Materialien wie Holz, Lehm und recycelte Baustoffe bieten nicht nur ökologische Vorteile, sondern tragen auch zur Verbesserung der Raumluftqualität bei. Holz beispielsweise ist ein nachwachsender Rohstoff, der CO2 speichert und somit zur Reduzierung des Treibhauseffekts beiträgt. Lehm hat hervorragende Eigenschaften zur Regulierung der Luftfeuchtigkeit und sorgt für ein gesundes Raumklima.
- Holz: Nachhaltig, CO2-speichernd und vielseitig einsetzbar.
- Lehm: Reguliert die Luftfeuchtigkeit und verbessert das Raumklima.
- Recycelte Materialien: Reduzieren Abfall und schonen Ressourcen.
Zukünftige Trends in der Raumgestaltung für Einfamilienhäuser
Die Raumgestaltung für Einfamilienhäuser entwickelt sich ständig weiter, und zukünftige Trends werden zunehmend von Technologie und Nachhaltigkeit geprägt. Ein vielversprechender Ansatz ist die Integration von Smart Home-Technologien, die es ermöglichen, verschiedene Aspekte des Wohnraums effizient zu steuern. Von intelligenten Heizsystemen, die den Energieverbrauch optimieren, bis hin zu automatisierten Lichtsteuerungen, die das natürliche Licht maximieren, bieten diese Technologien nicht nur Komfort, sondern auch eine Verbesserung der Energieeffizienz.
Ein weiterer wichtiger Trend ist die Verwendung von modularen Raumsystemen, die eine flexible Anpassung der Wohnfläche ermöglichen. Diese Systeme erlauben es den Bewohnern, Räume je nach Bedarf zu erweitern oder zu verkleinern, was besonders in Zeiten von Homeoffice und flexiblen Lebensstilen von Bedeutung ist. Durch die Kombination von nachhaltigen Materialien mit modularen Designs können Bauherren nicht nur umweltfreundliche, sondern auch zukunftssichere Wohnlösungen schaffen, die sich an die sich ändernden Bedürfnisse der Familie anpassen.
